Residential Plot, Benalmadena

Málaga, Costa del Sol, Benalmadena
CDS 5155867
529.000 €
  • area

    398m2

Puiki galimybė investuoti pačiame Arroyo de la Miel centre, Benalmádenoje. Šis 398 m² ploto miesto sklypas yra geriausioje vietoje, apsuptas visų paslaugų, vos už kelių minučių kelio nuo paplūdimio ir su puikiu susisiekimu.

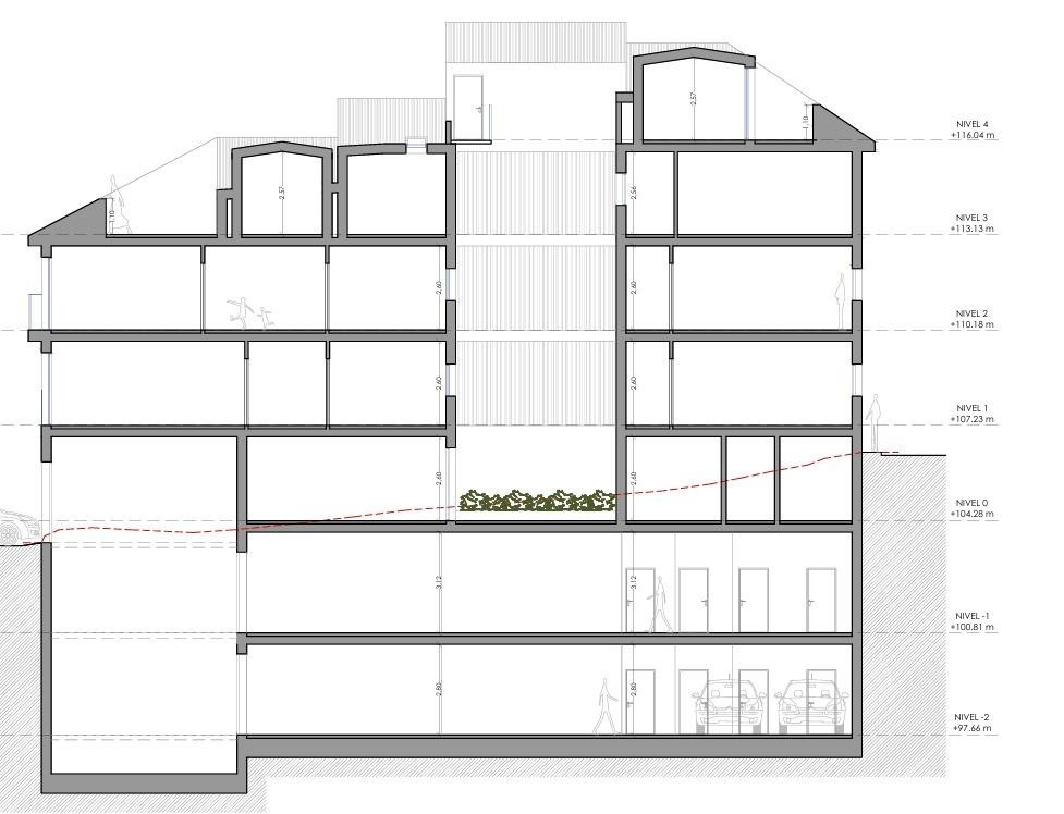
Sklypas jau turi parengtą pagrindinį projektą, kurį galima pateikti miesto savivaldybei, o tai gerokai pagreitina dokumentų tvarkymą ir sutaupo laiko bei išlaidų statybų proceso pradžioje.

Pagrindiniai investiciniai akcentai:

Puiki vieta: nusistovėjęs gyvenamasis rajonas su mokyklomis, prekybos centrais, viešuoju transportu ir įvairiomis laisvalaikio ir maitinimo įstaigomis.

Pažangus projektas: supaprastintas statybos leidimo gavimo procesas.

Didelis pelningumas: galimybė pastatyti 12 namų, kurių apytikslis užstatytas plotas yra 2 208,89 m².

Įvairūs išplanavimai: 1, 2 ir 3 miegamųjų apartamentai, įskaitant išskirtinius dviaukščius penthauzus.

Didelės paklausos priedai: 16 automobilių stovėjimo aikštelių ir 16 sandėliukų, suteikiančių papildomos vertės.

Planuojamas paskirstymas:
1 butas su 1 miegamuoju.
7 butai su 2 miegamaisiais.
4 dviaukščiai mansardiniai namai su 3 miegamaisiais.
16 automobilių stovėjimo vietų.
16 sandėliukų.

Išskirtinis nekilnojamojo turto pasiūlymas su dideliu potencialu viename dinamiškiausių ir paklausiausių Kosta del Sol rajonų. Investuoti į šį sklypą reiškia statyti ant saugaus projekto, pasižyminčio puikiu pelningumu ir visomis sėkmės garantijomis.

Mūsų tarpininkavimo mokesčiai jau įskaičiuoti į pardavimo kainą, todėl jums nereikės mokėti jokių valdymo ar nekilnojamojo turto konsultacijų išlaidų.
Vadovaudamiesi Andalūzijos regiono vyriausybės spalio 11 d. dekretu 218/2005, informuojame, kad į kainą neįskaičiuotos notaro, registro, perleidimo mokesčio (ITP) ir kitos su pirkimu susijusios išlaidos.
Pateikta informacija yra tik orientacinio pobūdžio, neprivaloma ir neturi sutartinės vertės. Pasiūlyme gali būti klaidų, kainos pokyčių, prieinamumo ir (arba) pasitraukimo iš rinkos be išankstinio įspėjimo. Ši informacija gali būti pakeista, bet dar neatnaujinta. Rekomenduojame susisiekti su agentūra, kad gautumėte naujausią informaciją ir (arba) patvirtintumėte čia pateiktą informaciją.

Domina šis turtas?

Teirautis