Land, Estepona

Málaga, Costa del Sol, Estepona
CDS 5182012
350.000 €
  • area

    880m2

Atkreipkite dėmesį: kad galėtume suteikti Jums geriausias įmanomas paslaugas, siųsdami užklausą palikite savo el. pašto adresą ir telefono numerį. Ačiū

Puikus 880 m² statybos sklypas su projektu ir statiniu Esteponoje su vaizdu į jūrą ir golfo aikštyną – idealiai tinka individualiai arba investicinei statybai
Šis 880,33 m² sklypas augančiame gyvenamajame Esteponos rajone suteikia puikią galimybę pasistatyti privačią vilą vos už kelių minučių kelio nuo paplūdimio, golfo aikštynų ir visų vietinių patogumų.

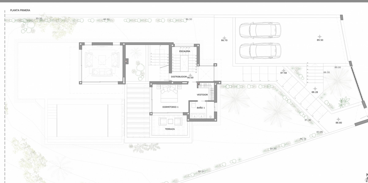
Sklype yra esami pamatai, todėl būsimasis savininkas gali rinktis iš dviejų variantų:
1 variantas: statyti vilą ant esamų pamatų (yra vykdymo projektas).
2 variantas: pašalinti esamus pamatus ir sukurti visiškai naują projektą nuo nulio.

Abiem atvejais pirkėjas turės kreiptis į vietos meriją dėl statybos licencijos.
Šis sklypas, esantis ramioje, bet gerai susisiekimo zonoje Esteponoje, idealiai tinka privatiems pirkėjams, vystytojams ar investuotojams, norintiems pasistatyti modernią vilą su baseinu, sodu ir atviromis gyvenamosiomis erdvėmis. Ši vieta yra gerai apšviesta saulės ir lengvai pasiekiama Esteponos miesto, Marbeljos, Puerto Banuso ir Malagos oro uosto, todėl ji pasižymi ilgalaike verte ir patraukliu gyvenimo būdu.

MŪSŲ AGENTŪRA IŠ NAUJO APIBRĖŽIA NEKILNOJAMOJO TURTO PATIRTĮ, SIEKDAMA UŽTIKRINTI SKLANDŲ, Į KLIENTĄ ORIENTUOTĄ APTARNAVIMĄ.
Mūsų misija neapsiriboja vien nekilnojamojo turto sandoriais – mes siūlome visapusišką, aukštesnio lygio kelionę į nekilnojamojo turto nuosavybę, skirtą tam, kad kiekvienas žingsnis būtų kuo sklandesnis ir nekeltų streso.

Teikdami specializuotą vizų išdavimo pagalbą, supaprastiname tarptautinį persikėlimą, kvalifikuotai spręsdami teisinius ir administracinius klausimus jums ir jūsų šeimai. Siekdami dar labiau palengvinti jūsų pradžią Ispanijoje, taip pat siūlome nemokamą N.I.E. pagalbą, pašalinančią biurokratines kliūtis ir taupančią jūsų brangų laiką.
mes suprantame, kad kiekviena investicija yra svarbi. Todėl mūsų vidaus hipotekos brokerių komanda nenuilstamai dirba, kad užtikrintų konkurencingiausias sąlygas, pritaikytas jūsų unikaliam finansiniam profiliui, ir jūsų svajonės apie nekilnojamąjį turtą tampa pasiekiamos kaip niekada anksčiau.

Mūsų požiūris aiškus ir tiesioginis: jūs bendraujate tik su mumis, be nereikalingų tarpininkų. Taip užtikrinamas skaidrus ir sklandus pirkimo procesas. Taip pat teikiame nemokamas teisines konsultacijas, kad apsaugotume jūsų investicijas ir užtikrintume jūsų interesų apsaugą.
Jums suteikiama išskirtinė prieiga prie aukščiausios kokybės sąrašų, kuriuos siūlo mūsų atsidavę agentai, gerai išmanantys rinką ir turintys prieigą prie ne rinkos galimybių. Tai ne tik nekilnojamojo turto paieška – tai asmeninės patirties, atitinkančios jūsų gyvenimo būdą ir ilgalaikę viziją, kūrimas.

mes ne tik parduodame nekilnojamąjį turtą – mes rūpestingai, aiškiai ir užtikrintai padedame jums kurti savo ateitį.
Pagrindinės savybės:

Sklypo dydis: 880,33 m²
Tinka vilos su baseinu statybai
Rami gyvenamoji aplinka su vaizdu į jūrą ir golfo aikštyną
Netoli golfo, paplūdimių ir paslaugų
Puikus investicinis potencialas

Nepraleiskite progos pasistatyti idealų namą vienoje patraukliausių pietų Ispanijos pakrantės vietų.
LEISKITE MUMS JUS PERKELTI!

Domina šis turtas?

Teirautis