Hostel, Alhaurín de la Torre

Málaga, Costa del Sol, Alhaurín de la Torre
CDS 4282063
750.000 €
  • area

    879m2

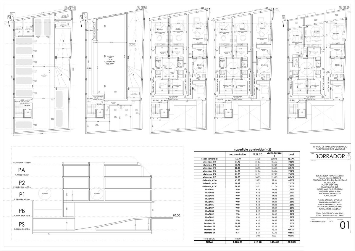
*** Investavimo galimybė!!! *** Pastatas atnaujinimui Avda Reyes Católicos, Alhaurín de la Torre, Malaga *** Galimybių studija baigta *** Gyvenamoji paskirtis *** Galimybė statyti daugiabutį pastatą su 9 namais, požemine automobilių stovėjimo aikštele, sandėliavimo patalpomis ir komercinėmis patalpomis ** * 3 aukštai virš žemės (be rūsio ir pirmojo aukšto) *** Ideali vieta: 15 minučių kelio automobiliu nuo Malagos centro ***

Tai puiki investavimo galimybė, atsižvelgiant į pastato, kuriame iš viso galima pastatyti devynis daugiabučius namus, požeminę automobilių stovėjimo aikštelę (su devyniomis vietomis ir keturiomis sandėliavimo patalpomis) ir 156 m2 komercines patalpas, galimybes. Būtų galima pastatyti du papildomus lygius: mansardą ir rūsį.

Naudojimo paskirtis – gyvenamoji, jau yra parengtas statybos projektas su galimybių studija, todėl per šešis mėnesius nuo įsigijimo būtų galima pradėti prekiauti.

Jo vieta ideali, nes jis yra viename iš centrinių Alhaurín de la Torre prospektų, ramioje ir saugioje savivaldybėje, vos už dešimties minučių kelio automobiliu nuo Malagos centro ir paplūdimio.

Dėl papildomos informacijos kreipkitės į mus.

Domina šis turtas?

Teirautis