Šis naujai suremontuotas butas yra pačioje Esteponos širdyje, žavingame istoriniame mieste, kuriame gausu pėsčiųjų gatvių, garsėjančių spalvingais gėlių vazonais ir poezijos freskomis.
Ši nepakartojama vieta leidžia gyventi vos už kelių minučių kelio pėsčiomis nuo geriausių Esteponos paplūdimių, parduotuvių, restoranų ir paplūdimio barų, taip pat netoli modernaus sporto uosto “Marina”, kur galėsite pasimėgauti draugiška atmosfera ir tikra Andalūzijos dvasia.
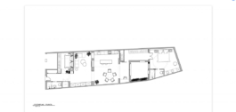
Šiame gražiame bute, kuriame yra 2 miegamieji ir 2 vonios kambariai (pagrindinis su vonios kambariu), atviro plano dizainerio sukurta virtuvė su valgomojo zona ir jauki svetainė, kviečianti svečius apsilankyti, yra šviesu ir patogu gyventi.
Dieną galite pradėti mėgaudamiesi rytiniu kavos puodeliu privačiame andalūziškame kieme, kurį ištisus metus supa šiltas Viduržemio jūros klimatas.
Nepraleiskite progos įsigyti fantastišką nekilnojamąjį turtą pačioje Esteponos širdyje, idealiai tinkantį nuomai, nuolatiniam gyvenimui ar atostogoms!
MŪSŲ AGENTŪRA IŠ NAUJO APIBRĖŽIA NEKILNOJAMOJO TURTO PATIRTĮ, SIEKDAMA UŽTIKRINTI SKLANDŲ, Į KLIENTĄ ORIENTUOTĄ APTARNAVIMĄ.
Mūsų misija neapsiriboja vien nekilnojamojo turto sandoriais – mes siūlome visapusišką, aukštesnio lygio kelionę į nekilnojamojo turto nuosavybę, kad kiekvienas žingsnis būtų kuo sklandesnis ir nekeltų streso.
Teikdami specializuotą vizų išdavimo pagalbą, supaprastiname tarptautinį persikėlimą, kvalifikuotai spręsdami teisinius ir administracinius klausimus jums ir jūsų šeimai. Siekdami dar labiau palengvinti jūsų pradžią Ispanijoje, taip pat siūlome nemokamą N.I.E. pagalbą, pašalinančią biurokratines kliūtis ir taupančią jūsų brangų laiką.
mes suprantame, kad kiekviena investicija yra svarbi. Todėl mūsų vidaus hipotekos brokerių komanda nenuilstamai dirba, kad užtikrintų konkurencingiausias sąlygas, pritaikytas jūsų unikaliam finansiniam profiliui, ir jūsų svajonės apie nekilnojamąjį turtą tampa pasiekiamos kaip niekada anksčiau.
Mūsų požiūris aiškus ir tiesioginis: jūs bendraujate tik su mumis, be nereikalingų tarpininkų. Taip užtikrinamas skaidrus ir sklandus pirkimo procesas. Taip pat teikiame nemokamas teisines konsultacijas, kad apsaugotume jūsų investicijas ir užtikrintume jūsų interesų apsaugą.
Jums suteikiama išskirtinė prieiga prie aukščiausios kokybės sąrašų, kuriuos siūlo mūsų atsidavę agentai, gerai išmanantys rinką ir turintys prieigą prie ne rinkos galimybių. Tai ne tik nekilnojamojo turto paieška – tai asmeninės patirties, atitinkančios jūsų gyvenimo būdą ir ilgalaikę viziją, kūrimas.
mes ne tik parduodame nekilnojamąjį turtą – mes rūpestingai, aiškiai ir užtikrintai padedame jums kurti savo ateitį.
Susisiekite su mumis dėl apsilankymo asmeniškai arba virtualios ekskursijos, mielai jums padėsime!
LEISKITE MUMS JUS PERKELTI.