Detached Villa, Almogía

Málaga, Costa del Sol, Almogía
CDS 5134414
450.000 €
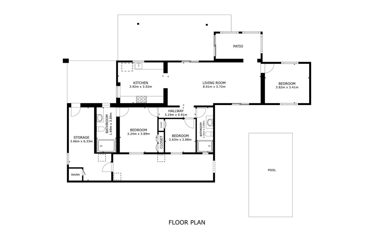
  • bed

    3 miegamieji

  • bath

    2 vonios

  • area

    160m2

Lion Hill – prabangi vila su privačiu baseinu ir panoraminiais vaizdais

Lion Hill – tai prabangi vila su privačiu baseinu ir panoraminiais vaizdais, esanti vos už 10 minučių kelio automobiliu nuo žavingų Almogijos ir Villanueva de la Concepción kaimelių. Pabuskite saulei kylant virš Fuente Amarga kalvų, pasimėgaukite rytine kava erdvioje verandoje ir leiskite savo žvilgsniui klaidžioti po kvapą gniaužiantį Andalūzijos kraštovaizdį.

Pagal aukščiausius standartus visiškai atnaujintoje viloje yra trys stilingi miegamieji ir du elegantiški vonios kambariai. Viduje rasite modernių patogumų, tokių kaip grindinis šildymas ir vėsinimas, granulinė krosnelė ir saulės baterijos su išplečiama baterijų saugykla. Dėl pažangios vandens valymo sistemos galite gerti tiesiai iš čiaupo – nebereikės vandens iš butelių. Pastaba: energinis sertifikatas parengtas pagal naująjį 2030 m. standartą.

Lauke atsipalaiduoti kviečia šildomas privatus baseinas, apsuptas didelės terasos ir gražiai apželdintų sodų. Sklypas visiškai aptvertas, jame yra elektriniai įvažiavimo vartai ir dengta stoginė automobiliui. Jei pageidaujate, vila gali būti parduodama su visais baldais, įskaitant virtuvės įrangą, todėl galėsite įsikelti ir pradėti mėgautis iš karto.

Vos už 45 minučių kelio nuo Kosta del Sol paplūdimių ir Malagos oro uosto, “Lion Hill” siūlo puikų Andalūzijos poilsį: prabangą, privatumą ir vaizdus, kurie jus žavės diena iš dienos. Tai daugiau nei namai – tai gyvenimo būdas.

Domina šis turtas?

Teirautis