Puiki galimybė įsigyti savo svajonių namus Marbeljos širdyje
EL ROSARIO VALLEY – unikalus vienos didžiausių Cost Del Sol plėtros kompanijų projektas.
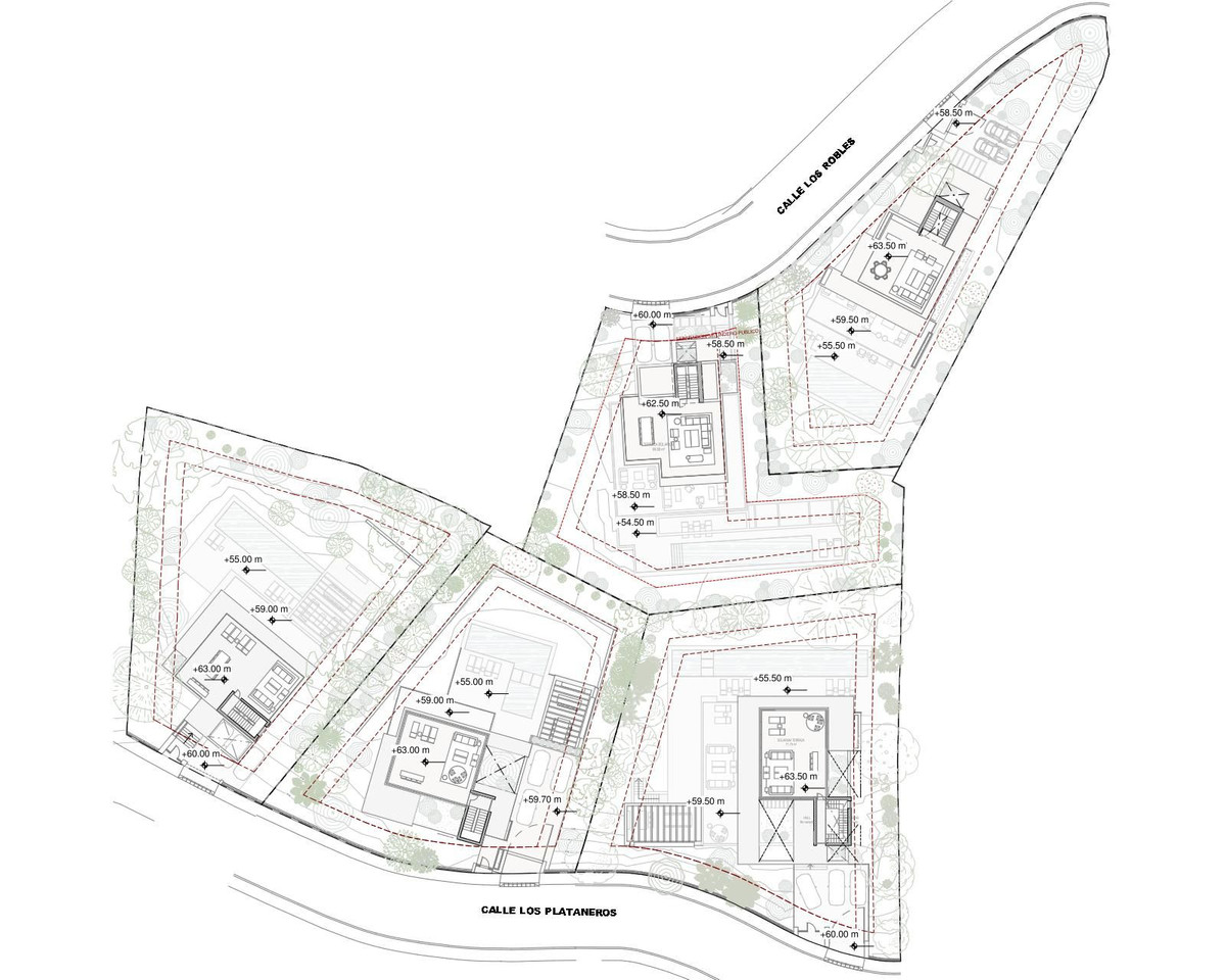
“El Rosario Valley” įsikūręs pačioje vienos prestižiškiausių Marbeljos uždarų gyvenamųjų rajonų širdyje, pasižyminčių aukštais saugumo standartais, naujai pastatytais keliais, apsuptas išplėstų žaliųjų plotų, netoli ilgų gražių Viduržemio jūros paplūdimių ir paplūdimio klubų, restoranų, prekybos vietų ir 1 minutės kelio iki Karališkojo teniso klubo.
Projektą sudaro 5 individualios vilos, kurias sukūrė vienas žymiausių Marbeljos architektų. Iš vilų atsivers įspūdingi vaizdai į La Concha kalną, Kosta del Solio emblemą, o iš stogo soliariumų terasų atsivers dalinis vaizdas į jūrą.
Vilos Los Plataneros gatvėje, El Rosario uždaroje urbanizacijoje, bendras plotas yra 1.010 m², užstatytas 390 m² rūsys ir 1-asis aukštas, plius papildomos terasos + 300 m² soliariumas.